Albert-Schweitzer-Str. 13

 

4 Wohneinheiten
(2 x 3 Zimmer, 2 x 4 Zimmer Maisonette-Wohnungen) zwischen ca. 81 m² und ca. 138m² Wohnfläche in einer ruhigen Wohnlage in Huchenfeld​​​​​.
Das anspruchsvolle Objekt wurde 2018 neu erbaut, hochwertige Ausstattung: barrierefrei, Heizung mit Luft-Wärmepumpe.

Erdgeschoss (rechts)
Hochwertige 3-Zi.-Wohnung
Ca. 81 m² Wohnfläche

  • offener Wohn-, Ess- und Küchenbereich
  • Schlaf- und Kinderzimmer
  • Bad mit Badewanne
  • Dusche und WC
  • separates WC
  • Flur
  • Vinyldielen und hochwertige Feinsteinzeugfliesen
  • Fußbodenheizung
  • elektrische Jalousien und Rolläden
  • Gegensprechanlage
  • Terrasse
  • Kellerraum
  • Tiefgaragenstellplatz

Erdgeschoss (links)
Hochwertige 3-Zi.-Wohnung
Ca. 81 m² Wohnfläche

  • offener Wohn-, Ess- und Küchenbereich
  • Bad mit Badewanne
  • Dusche und WC
  • Gäste-WC
  • Flur
  • Schlafzimmer- und Kinderzimmer
  • Fußbodenheizung
  • Vinyldielen hochwertige Feinsteinzeugfliesen
  • elektrische Jalousien und Rolläden
  • Gegensprechanlage
  • Terrasse
  • Kellerraum
  • Tiefgaragenstellplatz

Ober- und Dachgeschoss (rechts)
Hochwertige 4-Zi.-Wohnung-Maisonette-Wohnung
Ca. 138 m² Wohnfläche

  • offener Wohn-, Ess- und Küchenbereich
  • Arbeitszimmer
  • Bad mit Dusche und WC
  • Balkon
    Im Dachgeschoss:
  • Schlafzimmer mit begehbarem Kleiderschrank
  • Kinderzimmer
  • Bad mit Badewanne und WC
  • Flur
  • Vinyldielen und hochwertige Feinsteinzeugfliesen
  • Fußbodenheizung
  • elektrische Jalousien und Rolläden
  • Gegensprechanlage
  • Terrasse
  • Kellerraum
  • Tiefgaragenstellplatz

Ober- und Dachgeschoss (links)
Hochwertige 4-Zi.-Wohnung-Maisonette-Wohnung
Ca. 138 m² Wohnfläche

  • offener Wohn-, Ess- und Küchenbereich
  • Arbeitszimmer
  • Bad mit Dusche und WC
  • Balkon
    Im Dachgeschoss:
  • Schlafzimmer mit begehbarem Kleiderschrank
  • Kinderzimmer
  • Bad mit Badewanne und WC
  • Flur
  • Vinyldielen und hochwertige Feinsteinzeugfliesen
  • Fußbodenheizung
  • elektrische Jalousien und Rolläden
  • Gegensprechanlage
  • Terrasse
  • Kellerraum
  • Tiefgaragenstellplatz

Ansichtspläne

            Ansicht NORD                                   Ansicht OST                                    Ansicht SÜD                               Ansicht WEST

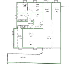
Grundrisse

                       UG                                                                 EG       
                                              

                  

                      OG                                                                   DG

                     

Bei der Nutzung von Google Maps werden Informationen über Ihre Benutzung dieser Website (einschließlich Ihrer IP-Adresse) an einen Server von Google in den USA übertragen und dort gespeichert. Weitere Informationen finden Sie in unserer Datenschutzerklärung.